01 电动车位的安装方式
1.电动停车位按设备安装完成度分为一次性配建和预留安装条件两种,具体如下:
1) 预留安装条件的要求:仅预留电力容量及设安装空间。
2) 一次性配建的要求:验收交付时,专用变压器及电缆桥架应敷设到位,根据地区及营销要求选择电缆、配电箱,充电设施的配置方式。
3) 新建住宅项目充电车位配建及预留比例,应按下表配置,特殊情况不能满足时,应说明原因,以最终条件图批复文件为准。

4) 交流充电桩,具有价格较低、尺寸小巧、易于安装、节省面积、易维护、适用于住宅地库夜间充电的优点。一次性配建充电设施原则上均按交流充电桩设计。
2.为避免成本浪费,同时保证验收及交付使用的要求,按设备安装完成度划分为下表的几种方式。各公司可根据成本测算及营销需求,相应选择各配建方式的占比,并应于条件图审批阶段说明。

02 充电停车位的放置要求
1.为便于设备铺设、充电设施管理使用,一次性配建的充电停车位宜集中布置为充电停车区,其规划要求如下:
1) 充电停车区应靠近充电配电室,充电配电室距离停车区不宜超过50米。
2) 服务直线半径超过200米时应分设多个充电停车区。
3) 充电停车区车位数量不宜超过100辆。
4) 充电停车区宜设置在车库出入口,便于消防救援及车辆出入。
2.为确保充电设施、变配电房使用安全、方便维护,其布置要求如下:
1) 不应设置在地势低洼易产生积水的位置。
2) 不应设置在卫生间、浴室相邻或其它经常积水场所的正下方。
3) 不应设置在有剧烈振动或高温的场所。
3.充电设施布置不应妨碍电动汽车行驶、停放,其与电动汽车、建(构)筑物的安全、操作、检修距离应符合下列要求:
1) 充电设施布置不应遮挡行车者视线,且不应设置在人行疏散走廊、通道上。
2) 充电设施朝向车辆的方向宜考虑防撞措施。
3) 原则上均应采用壁挂式安装或吊装式安装形式。
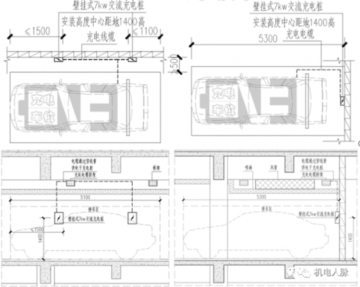
4) 安装形式及布置位置应考虑电动汽车与充电设施之间方便操作、便于车辆停靠,具体要求如下:充电设施宜布置在车位一侧的结构柱背面,安装完成后不应影响车门开启。安装形式根据结构柱面宽、选购的充电桩宽度选用,如下图示。




充电设施安装于车位侧边墙体时,侧边墙体与车位宽度应≥500mm,充电设施安装位置宜布置于车头或车尾,并不应影响车门开启;充电设施安装于车位尾部墙体时,车位宜贴墙体布置,充电设施居中安装,如下图示。

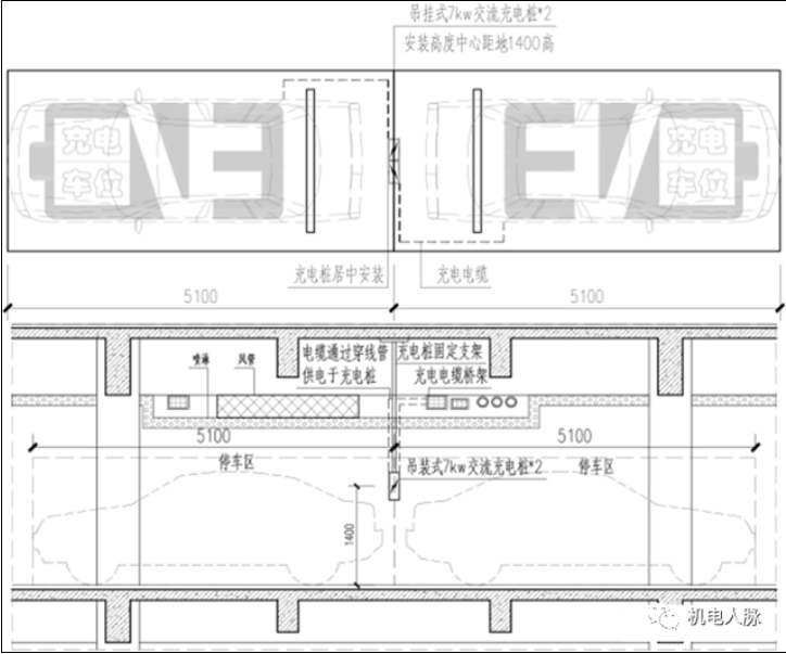
充电车位四周无土建安装构件时,充电设施可采用吊装式布置在车位尾部,如下图示。

标准柱跨充电设施安装方式应根据车位具体情况组合设置,如下图示。


4.充电设施的安装应符合下列要求:
1) 充电设施安装的墙面、支架符合承重要求,充电设施可靠固定。
2) 充电设施应垂直于水平面安装,偏离垂直位置任一方向的误差不宜大于5°。
3) 设备安装高度应便于操作,设备人机界面操作区域水平中心线距地面应为1.4m。
4) 地库内落地安装的充电设施应设安装基座,基座应大于充电设施外轮廓尺寸,高度应高于楼地面1000mm。
03 充电设备的通用要求
1 通用设计要求
1) 常用充电设备有3种:交流充电桩,功率7kW,供电电源采用220V交流电压;直流充电桩,功率30kW,供电电源采用380V交流电压;交直流一体充电桩,功率30+7kW,供电电源采用380V交流电压。(地区有特殊要求时以地方要求为准)
2) 充电设备应具备漏电保护、过欠流、过欠压、过温保护等功能。
3) 充电设备应具备紧急停机功能,充电枪插拔具备保护功能。设置于室外的充电设备应采取防雷措施。充电设备宜具有自动收线功能,防止人为使用不当造成的充电线缆损坏。
4) 选用的充电设备应符合国家标准、能源行业标准以及国家电网公司企业标准的相关要求,满足不同车型的充电需求。充电设备应兼容新/旧国标电动车的充电功能。
5) 特殊电动车需设置专用充电设备,由业主自行向物业及有关部门申请实施。
2 供配电及低压系统
1) 新建的住宅停车库(场),在设计变电所用电容量时,应充分考虑电动汽车充电设备的负荷容量,预留低压配电回路或预留专用变压器及配电系统的安装位置。
2) 电动汽车充电设备的负荷计算,在方案设计阶段应根据电动汽车停车位的数量按单位指标法进行计算,计算系数可参考下表选择。

3) 电动汽车充电设备的负荷计算,宜根据充电设备具体参数采用需要系数法进行,需要系数取值应满足国家及地方标准相关要求。
4) 电动汽车充电设备的配电电源应设置专用回路供电。充电设备的供电回路应按当地供电局要求,接入住宅公用变压器配电系统或非居配套专用变压器配电系统。
5) 电动汽车充电设备宜采用放射式配电,配电系统宜做到三相负荷平衡。
6) 宜采取抑制措施,将充电设备配电系统的谐波限制在规定范围内。
7) 充电设备配电线路的电线(缆)和线管在满足国家及地方标准的前提下,应按最经济原则选用。不应随意提高电线(缆)的规格,不应随意增加线管的材质标准和规格。
8) 电动汽车停车位区域的照度值应满足国家及地方标准相关要求。
3 计量计费、监控及通信系统
1) 充电设备应配置计量电能表,电能表数量应满足一桩一表。充电设备用配电箱应根据建筑划分的电动车停车区域,选择合理位置设置。
2) 充电设备具备IC卡读卡装置或扫码功能,实现充电控制及充电计费等功能。充电设备的计费标准,应结合当地供电局要求执行。充电设备应具有多种结算方式。
3) 充电设备应根据需要配置以太网通讯接口或无线通讯模块,便于后期充电桩组网管理,以及与相关管理部门系统联网。
4) 电动汽车充电设备监控及通信系统应根据工程实际按需设置。监控系统宜对供电状况、电能质量、供电设备运行状态等进行监视和控制。通信系统应能够满足与上级监控管理系统进行通信,接受上级监控管理系统的指令,上传数据到上级监控管理系统。
5) 充电设备监控及通信系统的控制室纳入物业管理综合信息平台,不单独设控制室。
6) 根据项目产品组合(高层、小高层、多层),进行供水方案技术经济比选,成本递减顺序为:带水箱变频加压控制系统、无负压管网直联式供水系统、市政压力直供,视项目情况可选用多方案组合
消息,12 月 8 日,据 SolanaFloor 监测,Circle 在过去 7 天内于 Solana 链上铸造了约 22.5 亿枚 USDC 稳...
2 新代币在 Pump.fun 上线,12 月初价格飙升—12月,网络迷因币市场呈现复苏迹象,领先的发行平台Pump.fun每日新增代币数量持续超过2万枚,...
3 比特币价格在 93,470 美元下方反弹停滞,比特币在 89,500 美元附近盘整,形成一个不断收窄的通道,并不断抬高低点。日内关键阻力位依...
4 “铁头多军”回归再度做多ETHSUIFARTCOIN,消息,据链上分析师 Ai 姨监测, 11.03-11.26 期间连续 36 次做多的铁头多军 已回归多头阵营。三...
5 WEEX 开启 MEME 生态周:新人三步领 220 US消息,12 月 8 日,WEEX 唯客交易所公告,平台正在开展「MEME 生态周」活动,新人简单三步即可...
6 随着抛售压力减弱,LINK 的动能悄然转变Chainlink 在经历了一段波动剧烈的下跌后,初步显示出企稳迹象,日线收盘价表明抛售潮有所缓...
7 AAVE 守住 180 美元支撑位,多头目标价位AAVE 已从 166 美元的低点反弹,并守住了关键的 180 美元支撑位,目前交易价格在 183 美元至 1...
8 跌幅最大的加密货币:门罗币跌破 370 美在加密货币市场停滞不前的背景下,门罗币 、Aster 和 Bonk 等山寨币面临持续的下行风险。XMR...
9 Chainlink凭借强劲的链上支撑,突破了下跌Chainlink 显示出潜在突破迹象,在 11.56 美元附近形成双底形态,并突破下降楔形。价格正接近...
10 彭博社:美国和加拿大上市DAT公司的股价今年以来,美国和加拿大上市的数字资产财库公司股价中位数下跌了43%。相比之下,比特币自...
成都来彰科技 蜀ICP备2025134723号-1
资讯来源互联网,如有版权问题请联系管理员删除。