两个钢结构的俯视图纸中,出现两种不同的尺寸标注方法,即设计基准的选择不一样。那大家觉得哪个设计基准的选择比较合理?为什么?


相信很多人都会第一时间选择第二种标注,那这两种不同的设计基准,为什么第一个不合理?
我们先来看看书上对基准的定义
是指零件或装配体上用来确定其他点、线、面位置的那些点、线、面。
基准又分为设计基准和工艺基准
工艺基准又分为:定位基准、测量基准和装配基准。
一般要求设计基准、测量基准和装配基准,三者要统一,但是,实际上三者统一的情况比较少,比如,上面底座的焊接就是设计基准和测量基准不统一的情况。基准不统一的时候,就要进行尺寸链的换算。
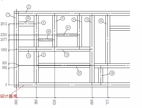
基准1是设计基准,设计者在设计零件时,根据基准1零件在装配结构中的装配关系以及零件本身结构要素之间的相互位置关系,确定标注尺寸(或角度)的起始位置。这些尺寸(或角度)的起始位置称作设计基准。

简言之,设计图样上所采用的基准就是设计基准
工艺基准(镗孔)
基准1零件在加工、测量和装配过程中所采用白的基准称为工艺基准。基准2是工艺基准,40这个尺寸不能基准1随便定,要进行计算。


定位基准的选择原则一
选最大尺寸的表面为安装面,选最长距离的表面为导向面,选最小尺寸的表面为支承面

首先考虑保证空间位置精度,再考虑保证尺寸精度。

应尽量选择零件的主要表面为定位基准,因为主要表面是决定该零件其他表面的基准,也就是主要设计基准(340)

定位基准应有利于夹紧,在加工过程中稳定可靠
消息,据Whale Alert发推称:Galaxy Digital 从一未知钱包接收 1060 枚比特币,价值约 7816.33 万美元。...
2 柴犬价格一天内上涨 8%,但要去掉一个零在过去24小时内,随着整体市场反弹,Shiba Inu 上涨了8.3%,比特币也重回74,000美元。过去一周,...
3 地址“bc1qfs”过去6天从Binance提币1938枚一地址bc1qfs过去6天内累计自Binance提币1,938枚BTC,按当前价格约合1.38亿美元。...
4 美英加联手打击加密钓鱼诈骗消息,据Coin Bureau发推称:美国、英国和加拿大联合打击加密货币钓鱼诈骗,美国特勤局与加拿...
5 马斯克旗下xAI大规模招聘金融专家训练消息,马斯克旗下xAI正大规模招聘证券研究、宏观及量化交易等金融专家,为AI系统Grok提供数...
6 安全产品反而泄密:360安全龙虾将HTTPS通消息,据 1M AI News 监测,360 近期发布的安全产品「安全龙虾」被发现将的通配符域名证书及对...
7 Synthetix宣布,随着主网上线日期的临近,Synthetix 已将 Infinex 平台上的 sUSD 存款奖励活动延长八周,此举与 Synthetix Perps 主网上线以及 ...
8 Hashdex Nasdaq CME Crypto Index ETF(股票代码:Hashdex资产管理公司已将其Hashdex纳斯达克芝商所加密指数ETF的年度管理费永久性降至0.25%,取代...
9 从13年长跑到1年冲刺:AI引爆半导体板块AI产业快速发展,成为驱动半导体产业持续高景气的核心引擎,全球半导体市场万亿美元销售规...
10 启用对选定现货交易参数的自动调整自2026年3月20日起,Bybit将逐步启用部分交易参数的自动调整功能,包括市价单、限价单和仅发...
成都来彰科技 蜀ICP备2025134723号-1
资讯来源互联网,如有版权问题请联系管理员删除。