切削件结构设计:合理选择毛坯
图 例 说明 
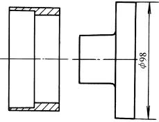
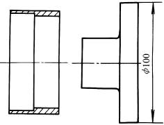
不合理

合理 改进后,在满足使用功能的前提下,将右部壁厚减小,可直接采用管材毛坯;改进后,可用f100的圆钢毛坯加工而成,毛坯尺寸减小,加工量随之减小
消息,ME News 消息,4 月 9 日,据 CoinFound 加密概念股数据显示,GameSquare Holdings, Inc. 股价现报...
2 麻吉大哥HYPE多单已全部平仓,以太坊多单消息,数据显示,麻吉大哥黄立成最新开设的 HYPE 多单已于 20 分钟前全部平仓,目前他仍在持...
3 OpenAI:暂停英国星际之门(Stargate)项目4月9日消息,OpenAI:暂停英国星际之门项目,将在合适的条件下推进英国计划。...
4 美国PCE数据出炉,核心通胀略低于预期消息,据Coin Bureau发推称:美国最新个人消费支出价格指数公布:整体PCE同比上涨2.8%,符合预...
5 Xverse 推出比特币原生 AI 代理钱包消息,ME News 消息,4 月 9 日,比特币钱包 Xverse 宣布推出比特币原生 AI 代理钱包 Xverse Agentic...
6 2.53亿USDT转入OKEx消息,据Whale Alert发推称:2.53 亿枚 USDT 从匿名钱包转入 OKEx 交易所。...
7 Circle股价跌30%市场已消化平台叙事消息,据吴说区块链发推称:Circle 股价下跌 30%,分析认为市场已消化其平台叙事定价,新兴稳...
8 美媒:特朗普政府可能很快放松对伊朗石消息,据美国财经媒体 Semafor:特朗普政府可能很快放松对伊朗石油的制裁,以帮助稳定全球石...
9 Clarity法案中对DeFi开发者的保护遭执法团美国警长协会、地方检察官协会等多个执法团体近期相继致函国会议员,反对参议院加密货币...
10 比特币ATM公司BitcoinDepot遭窃360万美元,消息,据ZachXBT发推称:比特币ATM运营商BitcoinDepot在提交给SEC的8K文件中披露,其团队在3月20日...
成都来彰科技 蜀ICP备2025134723号-1
资讯来源互联网,如有版权问题请联系管理员删除。